







































Residencial Clube Laguna
A consultar
Como é morar no Residencial Clube Laguna
Envie sua oferta – garanta até 10% de desconto! Fale com nossos especialistas agora!
Quer conhecer de perto? Agende sua visita!
Evento Exclusivo
Primeiro Imóvel
3 encontros online + Use seu FGTS + condições especiais
- Análise de crédito grátis
- Consultoria personalizada
- Entrada facilitada
- Cashback até R$ 4 mil*
100% GRÁTIS
Vagas Limitadas
Conheça a região
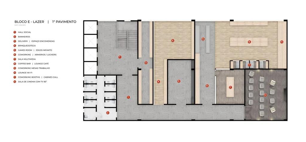
Áreas de Convívio e Lazer
Envie uma mensagem



